Dzīvokļa pārplānošana ar saskaņošanu būvvaldē
Saskaņosim visu dzīvokļa pārplānošanas dokumentaciju. izstrādāsim plānu variantus, saskaņosim jūsu idejas vai uzmērīsim un iztrādāsim dokumentāciju jau veiktiem būvdarbiem
No idejas līdz projektam
SECĪBA ČETROS VIENKĀRŠOS SOĻOS
PIETEIKUMS
Sazinieties ar mums epastā: [email protected], piezvanot, uzrakstot whatsapp +371 27458401, vai aizpildot pieteikumu mājaslapā
![]()
PIETEIKUMA APSTRĀDE, PIEDĀVĀJUMS
Darba dienas laikā (atkarībā no projekta sarežģītības) precizēsim darbu apjomu un sagatavosim piedāvājumu
PROJEKTA IZSTRĀDE UN SASKAŅOŠANA
Izstrādāsim projektu, sagatavosim visu nepieciešamo dokumentāciju (apsekojumi uzmērījumi, atzinumi utt..), pieprasīsim visu nepieciešamo informāciju zemesgrāmatā un valsts zemes dienestā, un ar pilnvaru būvniecības informācijas sitēmā visu saskaņosim

BŪVDARBU ATĻAUJA
Pēc projekta saskaņošanas ar būvvaldi jūs saņemsiet atļauju uzsākt remontdarbus un būvdarbus. Kad būvdarbi pabeigti, palīdzēsim visu nodot ekspluatācijā
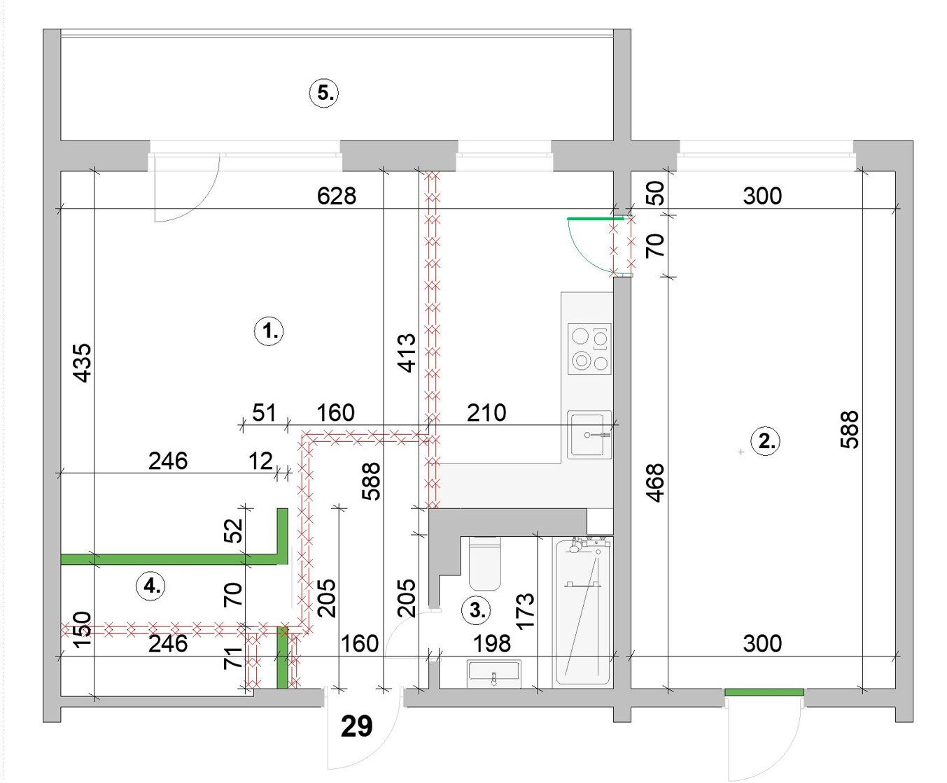
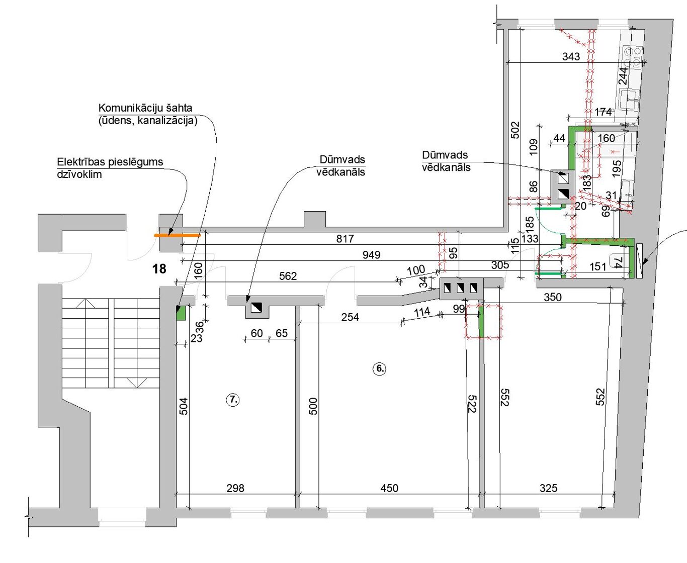
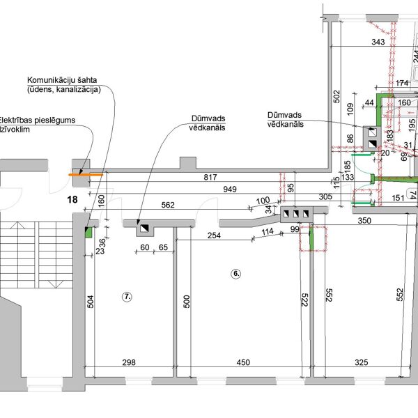
Mūsu projekti
Gūstiet priekšstatu par mums apskatot jau padarīto
Bezmaksas konsultācija/pieteikums
Labprāt atbildēsim uz jūsu jautājumiem, uzklausīsim jūsu ieceri un palīdzēsim to saskaņot būvvaldē.
PROJEKTU SASKAŅOŠANA
Visi projekti tiek saskaņoti un apliecināti ar mūsu sertifikātu valsts būvniecības informācijas sistēmā bis.gov.lv. Projektu izstrāde un saskaņošana iespējama arī attālināti, caur bezmaksas pilnvaru būvniecības sistēmā.