Projekts jau veiktiem būvdarbiem (legalizācija)

Saskaņosim jūsu jau veiktos būvdarbus, secība šādai saskaņošanai nemainās no tā vai būvdarbi jau ir veikti vai tos tikai plānojat. Labprātīgi šo darbu uzsākot un vēršoties, piemēram, pie mums, nekāds sods par to būvvaldē jāmaksā nebūs. Ja būs pārbūvētas tikai nenesošas sienas, varēsim saskaņot projektu vienkāršotā kartībā ar projektu Paziņojums par būvniecību, pārējos gadījumos ar projektu Paskaidrojuma raksts vai Būvprojektu. Uzmērīsim un iztrādāsim dokumentāciju jau veiktiem būvdarbiem, saskaņosim arī jūsu idejas un pēc nepieciešamības izstrādāsim plānu variantus.


Bezmaksas konsultācija/pieteikums

  • Uzmērīsim un iztrādāsim dokumentāciju jau veiktiem būvdarbiem
  • Sagatavosim projektu un dokumentāciju arī jau jūsu izdomātiem plāniem
  • Saskaņosim dokumentāciju, konsultēsim un nodosim ekspluatācijā
Izmaksas no 250 eur.

Nepieciešamie dokumenti (varam palīdzēt to sagādāšanā)

  • Zemesgrāmata (ieskenēts oriģināls vai nodalījuma noraksts zemesgramata.lv)
  • Esoša inventarizācijas lieta (ieskenēts oriģināls vai kadastrālās uzmērīšanas lieta no vzd.gov.lv)
  • Būvētāja civiltiesiskā apdrošināšana, derēs jebkura kompānija, bet parasti ātri un lēti ir ( PIRKT POLISI | BALTA)


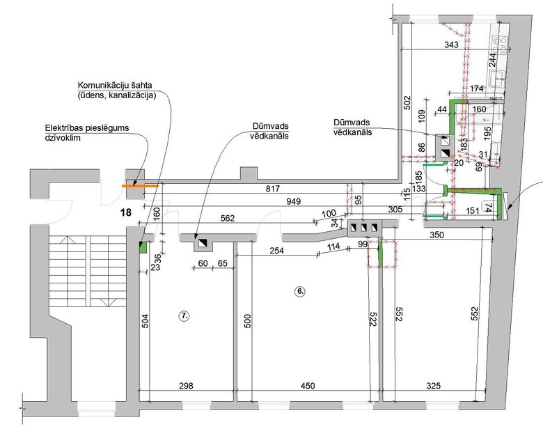
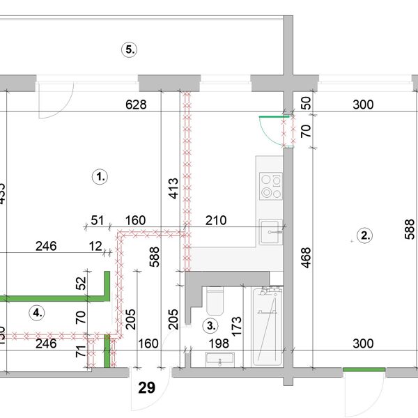
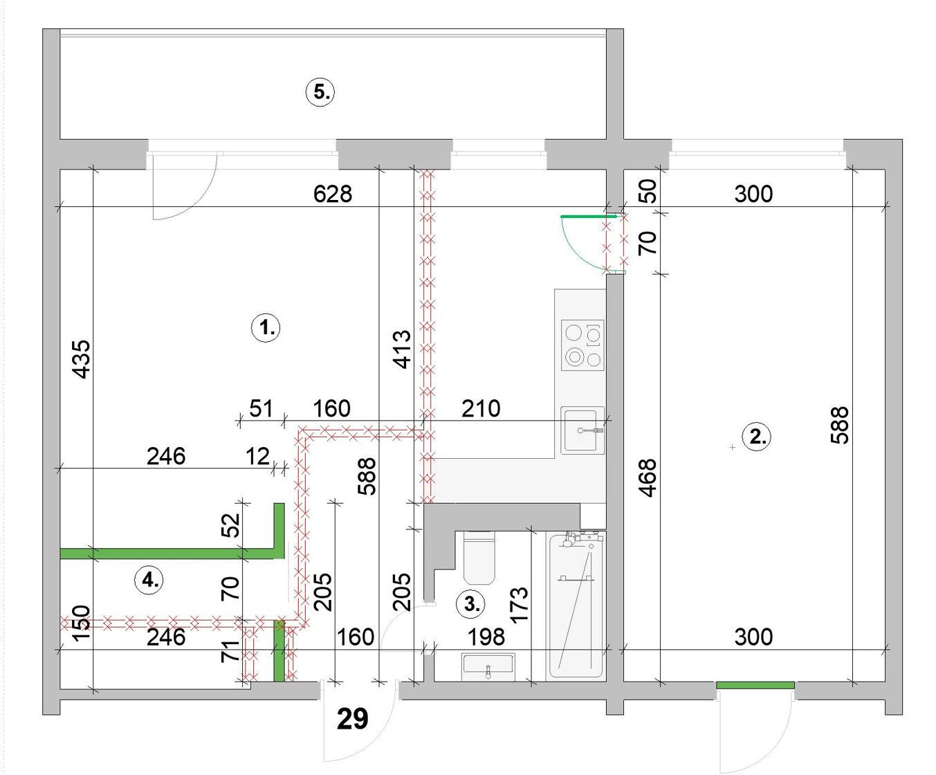
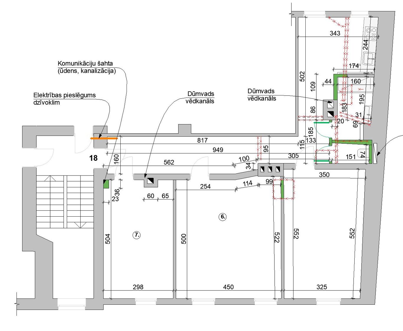
Projektu paraugi