Paziņojums par būvniecību

Ja nesošās sienas netiek skartas, pārplānošanu varam saskaņot vienkāršotā kārtībā ar projektu paziņojums par būvniecību. Saskaņosim visu dzīvokļa pārplānošanas dokumentaciju. Izstrādāsim plānu variantus, saskaņosim jūsu idejas vai uzmērīsim un iztrādāsim dokumentāciju jau veiktiem būvdarbiem.


Bezmaksas konsultācija/pieteikums

  • Izstrādāsim ērtākos plānojuma variantus tieši jūsu vajadzībām
  • Sagatavosim projektu un dokumentāciju arī jau jūsu izdomātiem plāniem
  • Saskaņosim dokumentāciju, konsultēsim būvdarbos un nodosim ekspluatācijā
Izmaksas no ~250 eur.


Ātrs veids kā saskaņot pārbūvi dzīvoklī. Dokumentu izstrāde, sagatavošana un saskaņošana aizņem tikai 3 dienas. Ar projektu paziņojums par būvniecību iespējams saskaņot dzīvokļa plānojuma izmaiņas:

  • Nenesošu sienu nojaukšanu
  • Jaunu sienu uzbūvēšanu
  • Vannas istabas/ virtuves novietojuma maiņu

Veicot kapitālo remontu dzīvoklī bieži tiek mainīts arī mēbeļu izvietojums, palielināta elektrības jauda, mainīti vadi, rozešu novietojums, vannas maiņa uz dušas kabīni, izlietnes un poda novietojums. Viss šeit uzskaitītais nav jāsaskaņo ar būvvaldi, bet lai remontdarbu laikā nebūtu lieku pārpratumu un izmaksu kaut ko pārtaisot divreiz, mēs piedāvājam izstrādāt rasējumus un vadīt remontdarbus visam uzskaitītajam.

Dokumentāciju vienkāršotajai atjaunošanai saskaņojam sākot no 250 eur.


Nepieciešamie dokumenti (varam palīdzēt to sagādāšanā)

  • Zemesgrāmata (ieskenēts oriģināls vai nodalījuma noraksts zemesgramata.lv)
  • Esoša inventarizācijas lieta (ieskenēts oriģināls vai kadastrālās uzmērīšanas lieta no vzd.gov.lv)
  • Būvētāja civiltiesiskā apdrošināšana, derēs jebkura kompānija, bet parasti ātri un lēti ir ( PIRKT POLISI | BALTA)

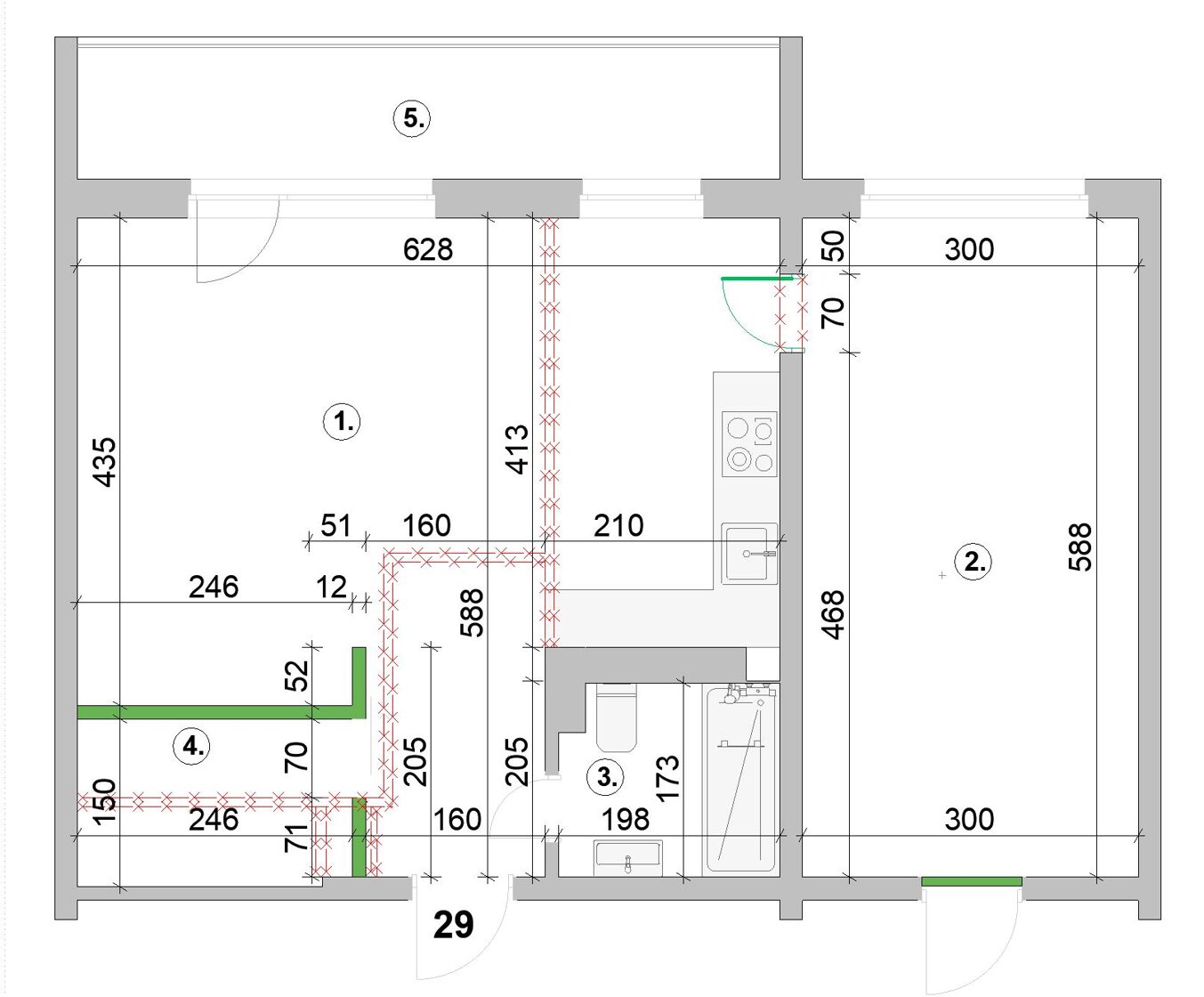
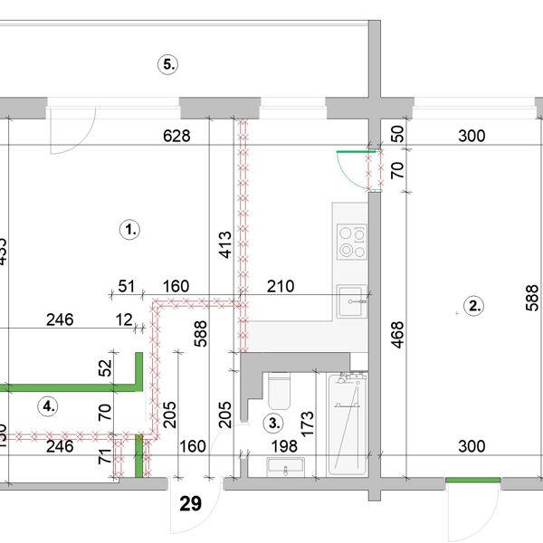
Projektu paraugi